توضیحات کاره

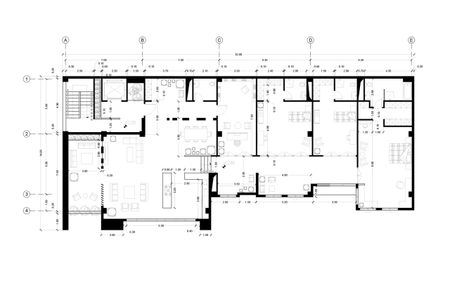
طراحی و ترسیم نقشه معماری در AutoCAD – برای پروژه‌های مسکونی، آموزشی، اداری و تجاری

برای داشتن فضایی کارآمد، زیبا و دلنشین، نحوه‌ی قرارگیری فضاها و کاربری‌های مختلف در کنار یکدیگر اهمیت زیادی دارد.
به عنوان مثال در یک پلان مسکونی، ارتباط صحیح بین حریم خصوصی و حریم عمومی خانواده نقش مهمی در کیفیت طراحی دارد.

در این راستا، طراحی و ترسیم نقشه‌های فاز یک معماری برای فضاهای مختلف (مسکونی، اداری، تجاری و...) با نرم‌افزار AutoCAD انجام می‌شود.

 

تعرفه خدمات:

  • ترسیم نقشه موجود در اتوکد: متری 10000 تومان

  • طراحی و ترسیم کامل نقشه در اتوکد: متری 30000 تومان

 

روند انجام پروژه:

  1. دریافت نقشه‌ی دستی یا توضیحات اولیه از کارفرما (همراه با ابعاد و نیازها)
  2. ارائه‌ی نقشه‌ی اولیه (جانمایی فضاها) برای بررسی و تأیید کارفرما.
  3. پس از تأیید، طراحی کامل و ترسیم نهایی انجام و فایل پروژه تحویل داده می‌شود.

 

 تا ۲ مرحله اصلاح رایگان پس از ارسال اولیه شامل می‌شود.

 

زمان تحویل:

  • ترسیم نقشه دستی: ۱ تا ۳ روز کاری
  • طراحی کامل: ۳ تا ۷ روز کاری
  • در صورت نیاز به تحویل سریع‌تر، امکان انجام فوری با هماهنگی و هزینه‌ی اضافه وجود دارد.

 

خدمات اضافه:

  • در صورت تمایل، می‌توانید مدلسازی و رندر فضا را نیز سفارش دهید تا طرح نهایی با کیفیت بصری بالا به شما ارائه شود.
    هزینه این خدمات با توجه به حجم و جزئیات پروژه تعیین می‌شود.

 

نکته:

قیمت‌گذاری بر اساس طراحی پلان انجام می‌شود.
در صورت تمایل به طراحی نما یا دریافت فایل‌های گرافیکی (JPG) یا فایل اتوکد، لطفاً قبل از سفارش هماهنگ کنید تا پروژه‌ی اختصاصی شما ثبت شود.

 

 چرا همکاری با من؟

مهم نیست متراژ پروژه چقدر است، من همواره سعی می‌کنم با رعایت اصول معماری و نیازهای شما، بهترین استفاده از فضا را ارائه دهم و طرحی بسازم که هم کاربردی باشد و هم چشم‌نواز.

  • نمونه‌کارهایم را مشاهده کنید و با اطمینان تصمیم بگیرید.
  • پیش از سفارش، می‌توانید از طریق بخش گفتگو با من در ارتباط باشید و پروژه‌ی اختصاصی خود را تعریف کنید.
در صورت وجود هرگونه سوال یا ابهام قبل از ثبت سفارش با من در ارتباط باشید

مشتری بعد از انجام سفارش، به طور مشخص موارد زیر را تحویل خواهد گرفت:

 

 خروجی پروژه:

  • فایل PDF از پلان نهایی

  • (در صورت درخواست و هماهنگی قبلی) فایل DWG اتوکد

  • در صورت نیاز، ارائه‌ی گرافیکی به صورت JPG با هزینه جداگانه

    انتخاب جزئیات و ثبت سفارش

    ارائه گرافیکی تا 40 متر مربع +1 روز +200,000 تومان
    اصلاح نقشه (بابت هر شیت) +1 روز +100,000 تومان
    برای به ازای هر متر مربع   در 3 روز
    اگر پروژه خاص و یا شرایط خاصی را درنظر دارید که در باکس بالا نیامده، پروژه اختصاصی خود را درخواست دهید.